Listing Info
Name
Address
866 Predator Ridge Drive
Legal
Site Size
Sites
Income
$0
Price
$2,295,000
Status
Active
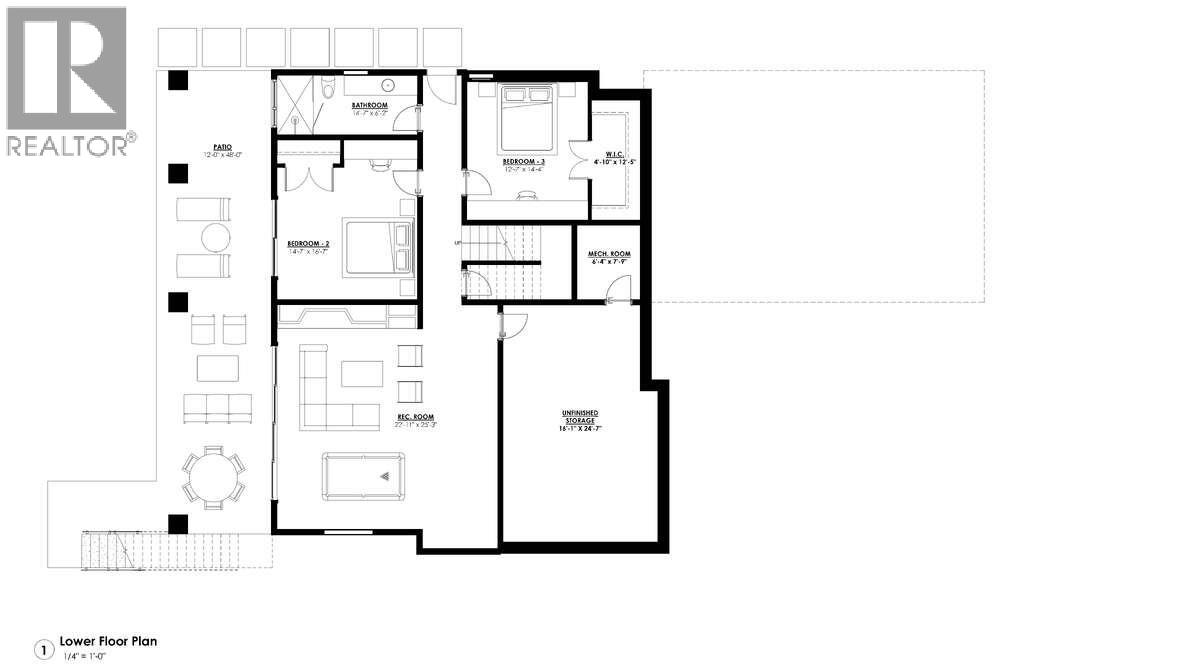
Description
For more info, click Brochure button. Move-in ready architectural walkout offers 3324 sqft of thoughtfully designed living with expansive windows framing fairway views. The open-concept great room is anchored by a custom oak fireplace feature wall & flows seamlessly to a covered patio designed for outdoor entertaining. The chef-inspired kitchen features a large quartz island, premium appliances, & a separate pantry with sink. The Primary Suite offers a spa-style ensuite with freestanding tub, heated floors, & walk-in closet. Lower level includes a spacious rec room, 2 guest bedrooms, & a bathroom with exterior access for future pool use. Built to BC Energy Step Code 4, delivering approximately 40% greater efficiency than standard construction. High-performance systems include a high-efficiency heat pump, EV pre-wire, radon mitigation, flood protection, & the innovative Gradient Thermal sync furnace— a 2-in-1 combination furnace and tankless hot water heater for superior efficiency and energy savings. Enjoy cleaner indoor air with a Carrier whole-home air purification system featuring MERV 15 filtration. Garage includes a LiftMaster Elite Series MyQ Wi-Fi wall-mount opener with battery backup. Located within the City of Vernon with full city utilities & landscape maintenance included. Predator Ridge offers resort-style living just 25 min to Kelowna International Airport with amenities including golf, fitness, and more. Property not yet assessed. Contains rendering photos. (id:6769)


