Listing Info
Name
Address
#200 1751 Harvey Avenue
Legal
Site Size
Sites
Income
$0
Price
$21
Status
Active
Description
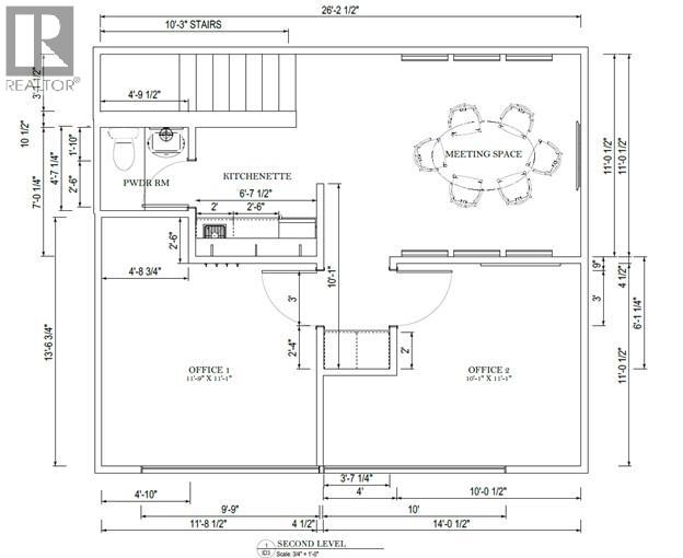
Unique opportunity to lease centrally located office space in the Landmark corridor. The second floor of this well finished 1,053 square foot unit includes 2 private offices, an open work area/boardroom, kitchenette, and bathroom. There is an overhead door at the main level which can be used for equipment storage or parking. (id:6769)
Listing Broker Venture Realty Corp.
MLS# 10360907


