Listing Info
Name
Address
#1 222 Temple Street
Legal
Site Size
Sites
Income
$0
Price
$639,000
Status
Active
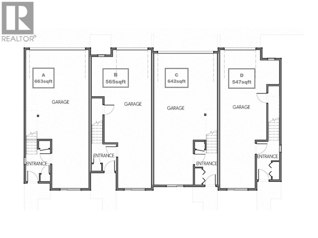
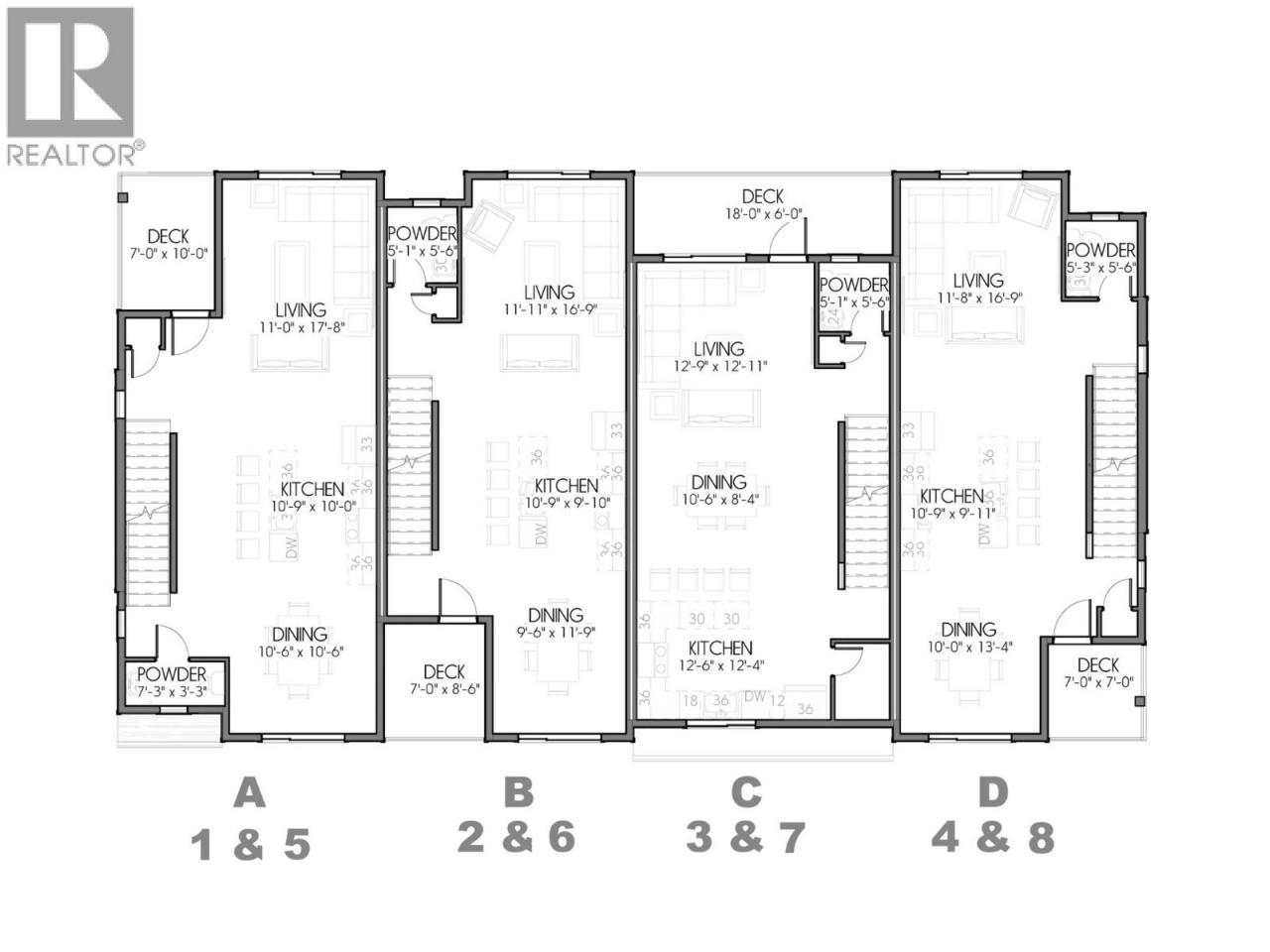
Description
Welcome to #1 at MaraVista Sicamous — the most private home in the complex, with only one shared wall on the north side. This thoughtfully designed townhome offers 1,582 sq.ft. of living space plus an ample 663 sq.ft. garage w/ 8’ overhead door, measuring 39’ deep x 19.5’ wide (exterior). The main entry offers a coat closets, leading upstairs to a bright, open-concept main floor w/ a eating bar, electric fireplace, dining area, powder room, and a 7’ x 8.5’ outdoor deck. On the top floor, you’ll find 2 spacious bedrooms plus a den — both bedrooms feature private ensuites, & the primary includes a full walk-in closet. Laundry is conveniently located upstairs. Quartz counter tops through-out & off white color drenched walls and trim the modern vibes can be compliments beautifully with your Beach boho decore. Modern finishings include white cabinetry, matte black hardware, neutral vinyl plank flooring, & enhanced soundproofing. The exterior features Hardy Plank siding, energy-efficient windows, & a high-efficiency mini-split A/C system for year-round comfort. Fully fenced yard. Prewired for Fiber Optic internet coming to Sicamous 2026. With only 5% down, plus receive a $5,000 appliance credit for the first 4 units sold in the building! Low Strata $356.11/mPet size restrictions apply. Long-term rentals only. Located close to downtown Sicamous, parks, beaches, & schools — this is your opportunity to get into one of the most functional & stylish townhomes in the Shuswap. (id:6769)


